0

CERNAY-LES-REIMS : Superbe maison non mitoyenne

Cernay-lès-Reims (51420)
Réf : DM3-3

C'est Cosy C'est VENDU par Cosymmo !


L’agence Cosymmo vous propose une nouvelle Exclusivité à Cernay-les-Reims.


Découvrez cette superbe maison de construction traditionnelle avec 5 chambres située aux portes de Reims sur une parcelle de + 1 400 m2.

Grande cave et vide sanitaire.

Terrain clos et sans vis à vis, piscinable.


Avec le confort de plain-pied et de beaux volumes, comprenant,


au rez-de-chaussée :

Belle entrée (26 m2) avec placard, séjour (42 m2), cuisine équipée (17 m2) avec arrière cuisine : cellier/buanderie, chambre (20 m2) avec placard, salle d'eau, wc séparé, accès au Garage (26 m2) avec porte automatique et point d'eau et accès à la cave en sous-sol (29 m2),


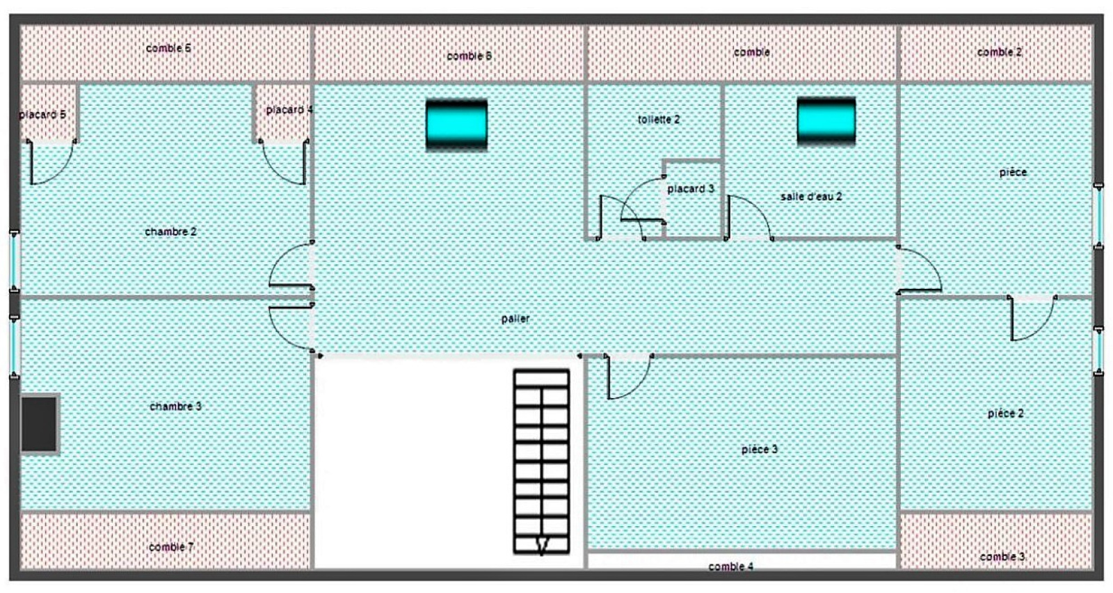
à l'étage :

Grande pièce palière/Bureau (24 m2), 4 chambres, pièce supplémentaire servant de dressing/lingerie, salle d'eau, wc séparé.


Surface habitable certifiée : 188,68 m2 et surface au sol : 243,71 m2.


Nombreuses annexes et rangements :

2 Garages (26 m2 + 31 m2).

Cave (29 m2).

Abris de jardin.

Rangements en sous-pente dans toutes les pièces du 1er étage + Placards.


Diagnostic de performance énergétique classé en C.

Fenêtres en double vitrage.

Cheminée insert dans le séjour et chauffage individuel électrique.


(Honoraires à charge vendeur).

Cosymmo, votre agence immobilière immo/déco/HomeStaging située au 128 rue Emile Zola, 51100 Reims.

David MOUSSY + 23 ans d’expérience.


Les informations sur les risques auxquels ce bien est exposé sont disponibles sur le site Géorisques
Prix du bien
Pièce(s) 9
Chambre(s) 5

Caractéristiques du bien

Caractéristiques Valeurs
Code postal 51420
Surface habitable (m²) 189 m²
Nombre de chambre(s) 5
Nombre de pièces 9
Nombre de niveaux 2
Vue Dégagée
Nb de salle d'eau 2
Cuisine Américaine
Type de cuisine Equipée
Mode de chauffage Gaz de ville, Electrique
Type de chauffage Cheminée, Radiateur
Format de chauffage Individuel, Individuel
Interphone OUI
Visiophone OUI
Terrasse OUI
Nombre de garage 2
Nombre de parking 5
Exposition Sud-Ouest

Infos financières

Caractéristiques Valeurs
Les honoraires d'agence seront intégralement à la charge du vendeur  
Taxe foncière annuelle 1 563 €
Ce bien vous est proposé par
Ces biens peuvent vous intéresser